Esta planta se destina al tratamiento de pellets ya conformados de residuo sólido urbano RSU y residuo de biomasa principalmente, es decir, no poseen planta de sorteado ni clasificación.
Gracias al sistema de Meriólisis donde el material se calienta y no se quema y donde los gases producidos por la termodescomposición son aprovechados por una gasificadora sin liberarse al exterior, la planta se encuentra dentro de un núcleo urbano conviviendo con otras fábricas, naves industriales incluso muy próxima (<100m) a viviendas.
Se trata de una planta de 1MWh, es decir, consume 1 tonelada de pellets por hora ininterrumpidamente durante 8.000h al año (11meses aprox), pasado este tiempo la planta se detiene para realizar un mantenimiento obligado.
La maquinaria se encuentra dentro de una edificación que tiene una planta aproximada de 900m2.
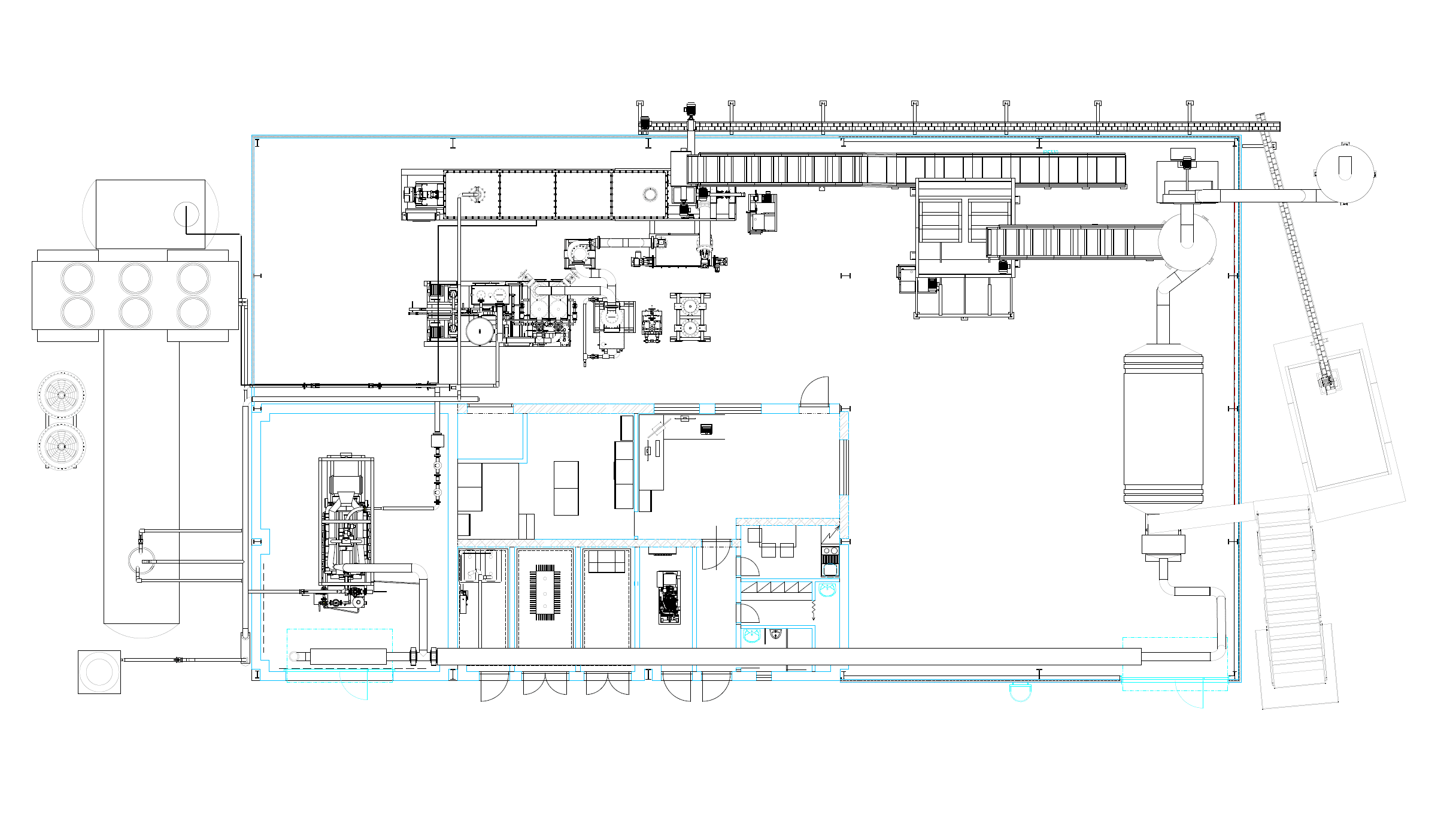
El interior de la planta posee la siguiente distribución:
Este es el diseño de planta de Meriólisis en Filakovo

Lugar donde se depositan los pellets ya conformados que vienen en grandes sacos y que se van vertiendo en la tolva de tal manera que van introduciéndose de forma escalonada a través de una cinta dentada que los transporta al interior del edificio.

Secador:
Los pellets procedentes de biomasa pasan por este secador cuya función es desecar y extraer la humedad contenida por el material hasta dejarla en niveles que vayan entre el 7 y el 20%.
Esta función es muy importante ya que de esta manera la productividad de la planta es mucho mayor.

Los pellets, libres de polvo e impurezas y gran parte de la humedad que contenían salen del secador y van pasando por distintos depósitos donde se almacenan y quedan en espera hasta que son transportado por cintas dentadas y van cayendo dentro de la tolva del horno de Meriólisis, (caja azul).

El sobrante de materia una vez descompuestos los pellets y después de realizar todo su recorrido dentro de la “caja azul” son expulsados a una cinta transportadora que los evacua de la nave y los deposita en un contenedor ubicado en el exterior del edificio en forma de humo de carbón en caso de haberse tratado RSU o en forma de biochar si se han tratado pellets provenientes de biomasa.

Dentro de la caja azul, se van depositando los pellets que van cayendo por gravedad al interior a través de un sistema de cuchillas que no permiten el paso de oxígeno.
El interior está compuesto por dos cilindros que son calentados con parte del gas producido en el mismo proceso y que van rotando y moviendo los pellets de un extremo a otro mientras se van descomponiendo debido a las altas temperaturas dentro de la retorta (entre 600 y 1200ºC).
Los gases liberados pasan a una gasificadora y el sobrante, biochar, si se ha tratado residuo proveniente de biomasa, se vende como mejorante de suelo para agricultores.
Cuando se ha tratado RSU, parte de este sobrante se vende a una cementera local que lo utiliza como combustible para su proceso de producción.


En el proceso de enfriamiento del gas, se condensa en torno al 10% de un agua rica en metales pesados que se filtran y se venden.
El gas, una vez tratado así como el agua utilizada para su limpieza en el proceso, se deposita en unos tanques separados situados en el exterior del recinto y que en este caso están enterrados.

El tanque de gas incorpora un sistema de ventilación que lo que hace es homogeneizar los distintos gases para que no se dispongan por capas según sus densidades.
En el proceso de enfriamiento del gas, se condensa en torno al 10% de un agua rica en metales pesados que se filtran y se venden como potenciador de ignición.

Los gases homogeneizados del tanque se utilizan para alimentar un motor de cogeneración que está ubicado en una sala contigua. Durante su funcionamiento, el motor de esta planta genera 1MWh de electricidad y en el proceso se genera un calor de 1,2MWh.
En Filakovo, la electricidad producida se vende e inyecta a la red existente.
En otras plantas se podría aprovechar el calor generado por este motor para hervir el agua contenida en una serie de calderas que mediante una turbina se llegaría a producir aproximadamente 0,6MWh adicionales.

En esta planta de Filakovo en Eslovaquia, el calor producido por el motor de cogeneración, se utiliza principalmente para inyectarlo en el secador (explicado en el punto 2) deshumidificando así los pellets antes de entrar en el proceso.
Este proceso se lleva a cabo mediante una tubería aislada (8) que conecta el motor con el secador.
El calor sobrante en este caso, se utiliza como calefacción en la planta.
Cuarto eléctrico, transformador, generador, y área de oficinas.

1
Lugar donde se depositan los pellets ya conformados que vienen en grandes sacos y que se van vertiendo en la tolva de tal manera que van introduciéndose de forma escalonada a través de una cinta dentada que los transporta al interior del edificio.

2
Secador:
Los pellets procedentes de biomasa pasan por este secador cuya función es desecar y extraer la humedad contenida por el material hasta dejarla en niveles que vayan entre el 7 y el 20%.
Esta función es muy importante ya que de esta manera la productividad de la planta es mucho mayor.

3
Los pellets, libres de polvo e impurezas y gran parte de la humedad que contenían salen del secador y van pasando por distintos depósitos donde se almacenan y quedan en espera hasta que son transportado por cintas dentadas y van cayendo dentro de la tolva del horno de Meriólisis, (caja azul).

4
El sobrante de materia una vez descompuestos los pellets y después de realizar todo su recorrido dentro de la “caja azul” son expulsados a una cinta transportadora que los evacua de la nave y los deposita en un contenedor ubicado en el exterior del edificio en forma de humo de carbón en caso de haberse tratado RSU o en forma de biochar si se han tratado pellets provenientes de biomasa.

5
Dentro de la caja azul, se van depositando los pellets que van cayendo por gravedad al interior a través de un sistema de cuchillas que no permiten el paso de oxígeno.
El interior está compuesto por dos cilindros que son calentados con parte del gas producido en el mismo proceso y que van rotando y moviendo los pellets de un extremo a otro mientras se van descomponiendo debido a las altas temperaturas dentro de la retorta (entre 600 y 1200ºC).
Los gases liberados pasan a una gasificadora y el sobrante, biochar, si se ha tratado residuo proveniente de biomasa, se vende como mejorante de suelo para agricultores.
Cuando se ha tratado RSU, parte de este sobrante se vende a una cementera local que lo utiliza como combustible para su proceso de producción.


6
En el proceso de enfriamiento del gas, se condensa en torno al 10% de un agua rica en metales pesados que se filtran y se venden.
El gas, una vez tratado así como el agua utilizada para su limpieza en el proceso, se deposita en unos tanques separados situados en el exterior del recinto y que en este caso están enterrados.

El tanque de gas incorpora un sistema de ventilación que lo que hace es homogeneizar los distintos gases para que no se dispongan por capas según sus densidades.
En el proceso de enfriamiento del gas, se condensa en torno al 10% de un agua rica en metales pesados que se filtran y se venden como potenciador de ignición.

7
Los gases homogeneizados del tanque se utilizan para alimentar un motor de cogeneración que está ubicado en una sala contigua. Durante su funcionamiento, el motor de esta planta genera 1MWh de electricidad y en el proceso se genera un calor de 1,2MWh.
En Filakovo, la electricidad producida se vende e inyecta a la red existente.
En otras plantas se podría aprovechar el calor generado por este motor para hervir el agua contenida en una serie de calderas que mediante una turbina se llegaría a producir aproximadamente 0,6MWh adicionales.

8
En esta planta de Filakovo en Eslovaquia, el calor producido por el motor de cogeneración, se utiliza principalmente para inyectarlo en el secador (explicado en el punto 2) deshumidificando así los pellets antes de entrar en el proceso.
Este proceso se lleva a cabo mediante una tubería aislada (8) que conecta el motor con el secador.
El calor sobrante en este caso, se utiliza como calefacción en la planta.

9
Cuarto eléctrico, transformador, generador, y área de oficinas.



